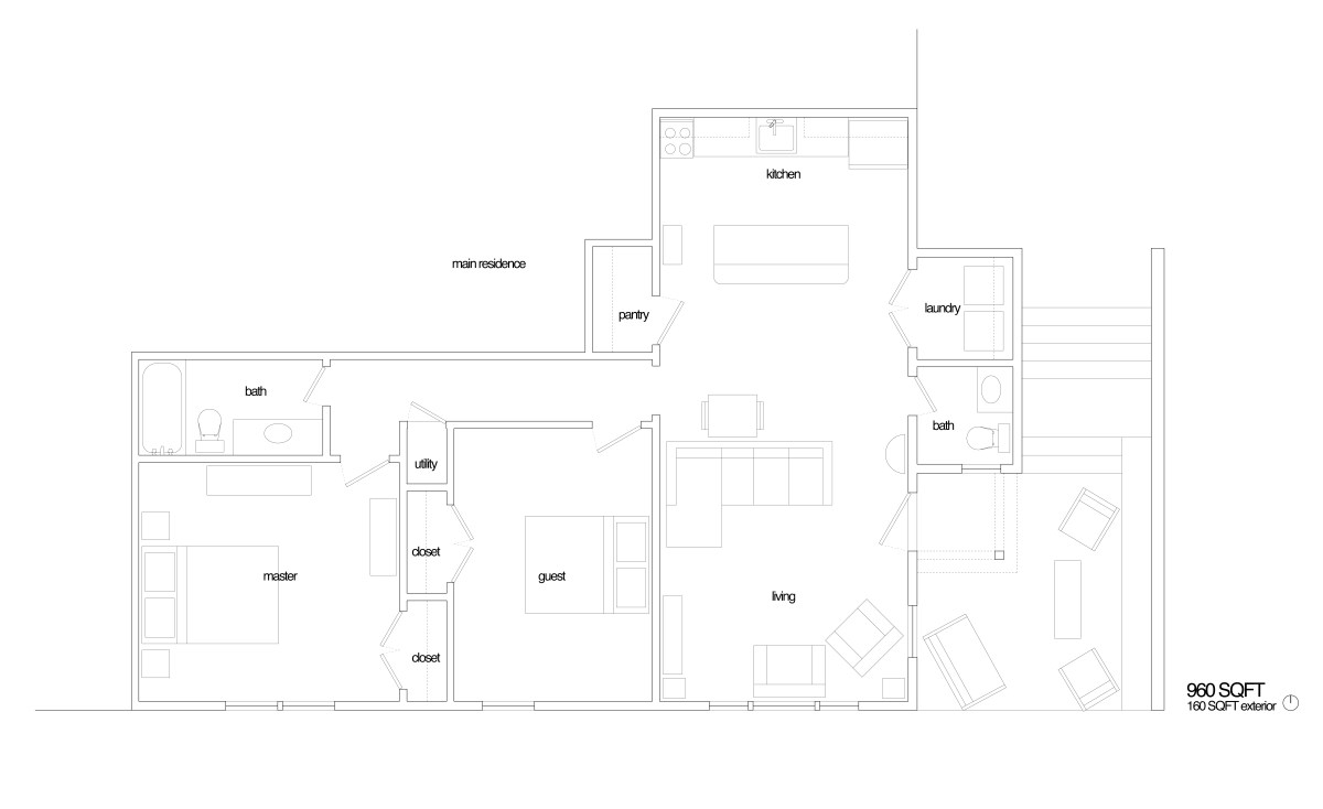
Katherine Nobles Plans Published April 30, 2013 at 10176 × 6228 in Katherine and Brent’s 960 sqft Accessory Apartment ← Previous